ZOTTEL Erjesztő tartály 6400l 3 hűtőköpennyel
A termék az alábbi kategóriákban található:
Erjesztő tartályok bor és cefrekészítéshezLeírás
A tartályt áztatásos erjesztésre és bor tárolására ajánljuk.
Az efajta technológiával készült borok, zamatosabbak és ízvilágban gazdagabbak lesznek
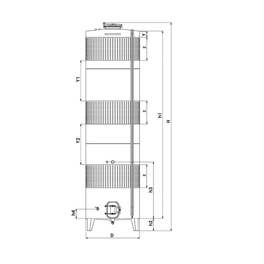
Az alsó négyzet alakú ajtó lehetővé teszi a tartály egyszerű ürítését és tisztítását.
A hűtőköpeny biztosítja az erjedés foyamatok állandő hőmérsékleten tartását. A köpeny elhejezése kérésnek megfelelően változtatható.
Leginkább a palást közepére helyezett hűtőköpenyek az elterjetebb változat.
A tartály alja 3° lejtéssel van kialakítva az ajtó irányába.
Alapfelszerelés:
|
Térfogat |
D |
H |
x1 |
h2 |
h3 |
Y mm-ben |
Z mm-ben |
HP m²-ben |
Kód |
|
300 |
636 |
1470 |
1000 |
320 |
500 |
100 |
400 |
0.8 |
081Z300L4V |
|
500 |
794 |
1470 |
1000 |
320 |
500 |
100 |
400 |
0.9 |
081Z500L4V |
|
600 |
794 |
1720 |
1250 |
320 |
625 |
100 |
400 |
0.9 |
081Z600L4V |
|
800 |
794 |
1970 |
1500 |
320 |
750 |
100 |
400 |
0.9 |
081Z800L4V |
|
1100 |
953 |
1970 |
1500 |
320 |
750 |
150 |
400 |
1.1 |
081Z1100L4V |
|
1500 |
1115 |
2010 |
1500 |
360 |
750 |
150 |
400 |
1.4 |
081Z1500L4V |
|
2000 |
1275 |
2010 |
1500 |
360 |
750 |
150 |
400 |
1.5 |
081Z2000L4V |
|
2450 |
1430 |
2010 |
1500 |
360 |
750 |
150 |
400 |
1.8 |
081Z2450L4V |
|
2600 |
1275 |
2510 |
2000 |
360 |
1000 |
150 |
500 |
1.9 |
081Z2600L4V |
|
3300 |
1430 |
2510 |
2000 |
360 |
1000 |
150 |
500 |
2.1 |
081Z3300L4V |



